


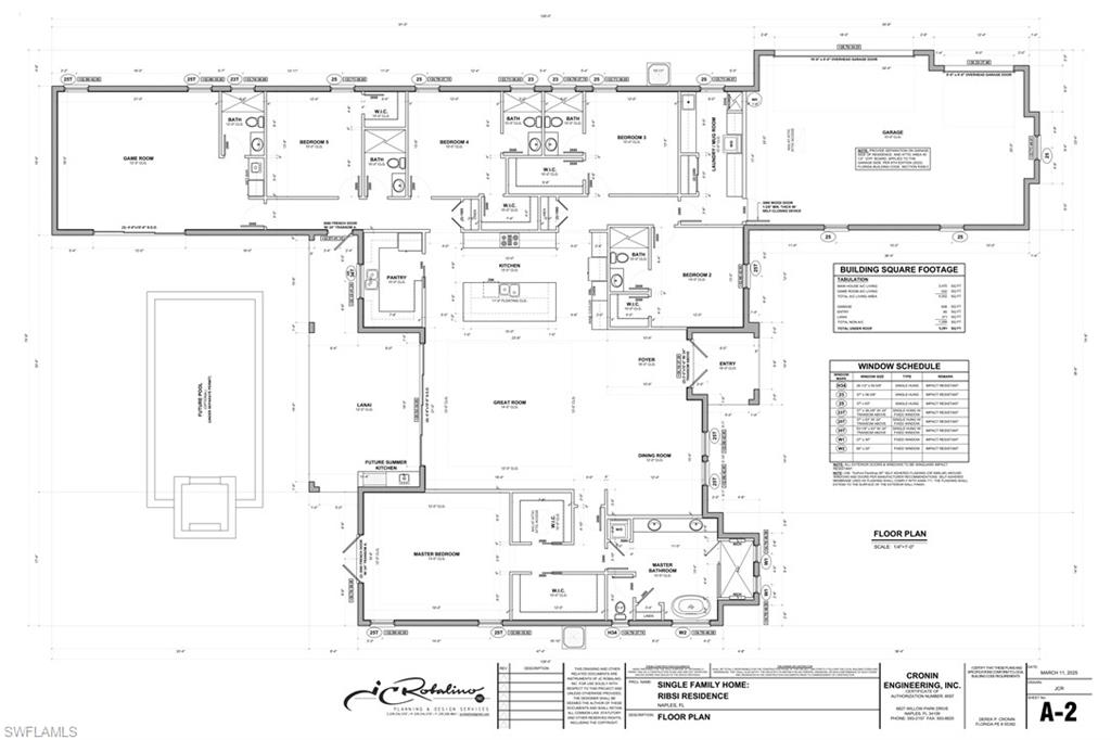
This soon-to-be-constructed luxury residence offers an exceptional blend of space, design, and location. Encompassing 4,002 square feet under air with an additional 1,289 square feet of outdoor and non-air-conditioned living space, this home is crafted for those who value both comfort and indoor-outdoor living.
The thoughtfully designed floor plan features 5 spacious bedrooms and 5 beautifully appointed bathrooms, providing ample room for family, guests, and flexible lifestyle needs. A dedicated game room adds an impressive entertainment hub--perfect for recreation, gatherings, or transforming into a media space or hobby suite.
Set on 2.65 acres of upland, the property provides privacy, natural beauty, and room to expand--whether for gardens, recreation, or future enhancements. Despite the serene setting, the home is ideally located near shops, restaurants, and daily conveniences, ensuring the perfect balance of tranquility and accessibility.
Crafted with high-quality materials and modern design throughout, this home promises to deliver refined living in an exceptional setting.
I am a loyal and dedicated agent that will negotiate the best deal possible for my customers! On both the buyers and/or sellers side I ensure that my customers experience a smooth closing!
Let's Connect